630 SW 153rd Street #106
|
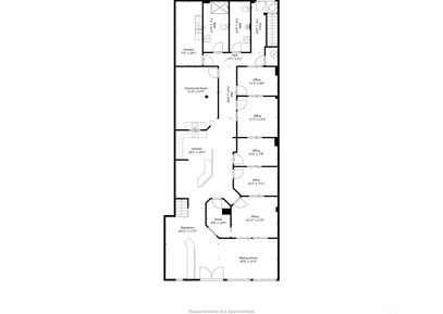
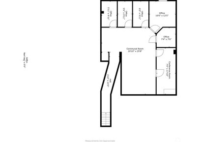
Medical/office space in a one of a kind building for lease in Downtown Burien! Spacious entryway and waiting room along with a beautiful reception area, kitchen, ten dedicated office spaces with room to create even more upstairs, multiple conference rooms, two separate bathrooms-one of which includes a shower and an abundance of storage space. Listing Courtesy of Northwest MLS / Keller Williams Realty PS |
630 SW 153rd Street #106, Burien, WA 98166
$6,900 | www.RSIR.com/2194899
View more info at: www.rsir.com/2194899