26519 NE 145th Street
|
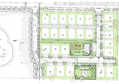
Exceptional Development Opportunity in Downtown Duvall! This 6.78-acre property, zoned R-12, is primed for residential development w/ 4.85 acres available for sale. Located just off Main Street, this parcel boasts stunning views of the valley & is close to all local amenities. Approved for 44 residential units w/ 19 multi-family duplex lots & 6 single-family lots. Portion of the site is also zoned for commercial use which offers endless possibilities for developers looking to create a vibrant community hub. Situated in a... Listing Courtesy of Northwest MLS / Keller Williams Rlty Bellevue |
26519 NE 145th Street, Duvall, WA 98019
$6,000,000 | www.RSIR.com/2294438
View more info at: www.rsir.com/2294438